David Vandervort 2970

David Vandervort Architects 2970 Home Design

A Gracious Residence for a Sloping Lot

This design consists of two ground-hugging, hip-roofed huts. The huts are capped with light monitors the bring daylight into the home. The open communal wing enjoys views to the front and rear. A glass roofed terrace serves the living room and pricateย master bedroom wing. An optional glass canopied entry stoop opens into a gallery that shares the terrace court and the views beyond.

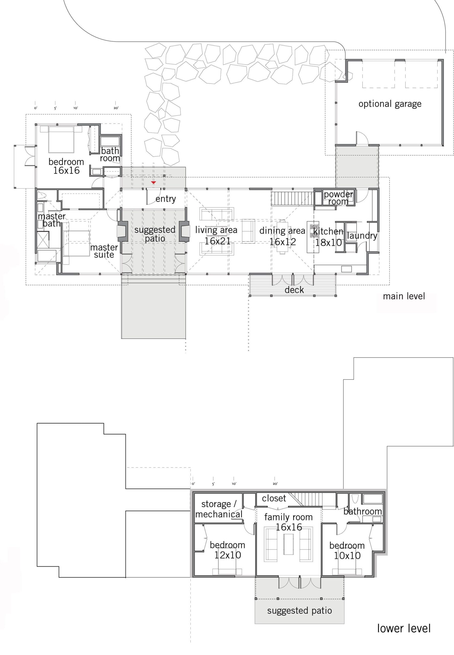
Floor Plans

EXPAND
david vandervort 2790 home design floor plan
CLOSE
CLOSE

Talk to a Local Lindal Dealer

Fill out this form to connect with your local dealer to discuss pricing, site requirements, floor plan modifications, and more.

View Form

Ready to take the Next Step?

Reach out to your local Lindal Dealer for guidance through the entire design/build process.