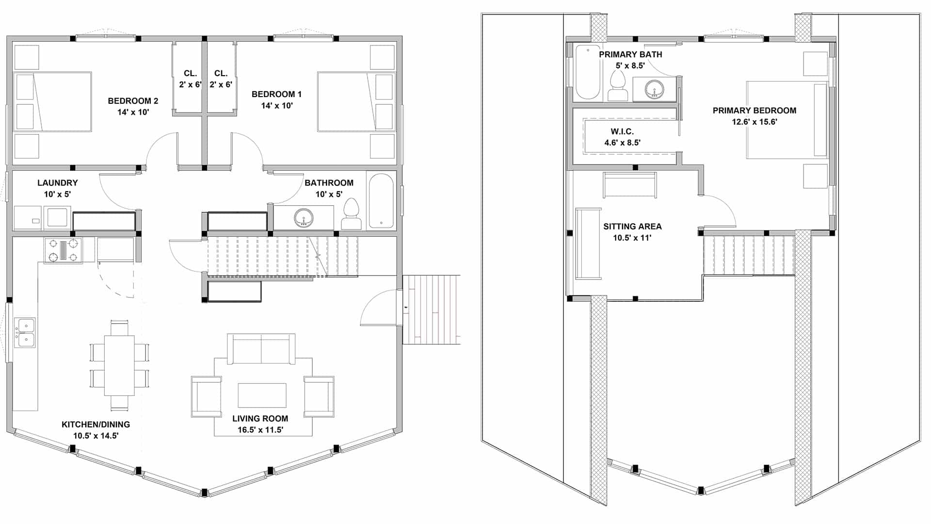
Summit Teton
-
Home DesignQuick Ship Program
-
Bedrooms3
-
Primary BedroomMain Level
-
Bathrooms3
-
First Floor1301 sq. ft.
-
Other Floor536 sq. ft.
-
Total Area1837 sq. ft.
-
Size32' x 43'
Ideal for: A flat lot.
The Quick Ship Teton is available as part of the Lindal Quick Ship Program; a collection of best-selling homes already drawn to the final permit stage. Each comes with a menu of optional revisions. The option allow you to personalize your home in an efficient and cost-effective manner. Our Quick Ship homes are sold at a discount — subject to certain conditions — and can ship much faster than our more customized home packages.
Floor Plans