Dowling Studios 2230

Lindal Architects Collaborative: Dowling Studios 2230

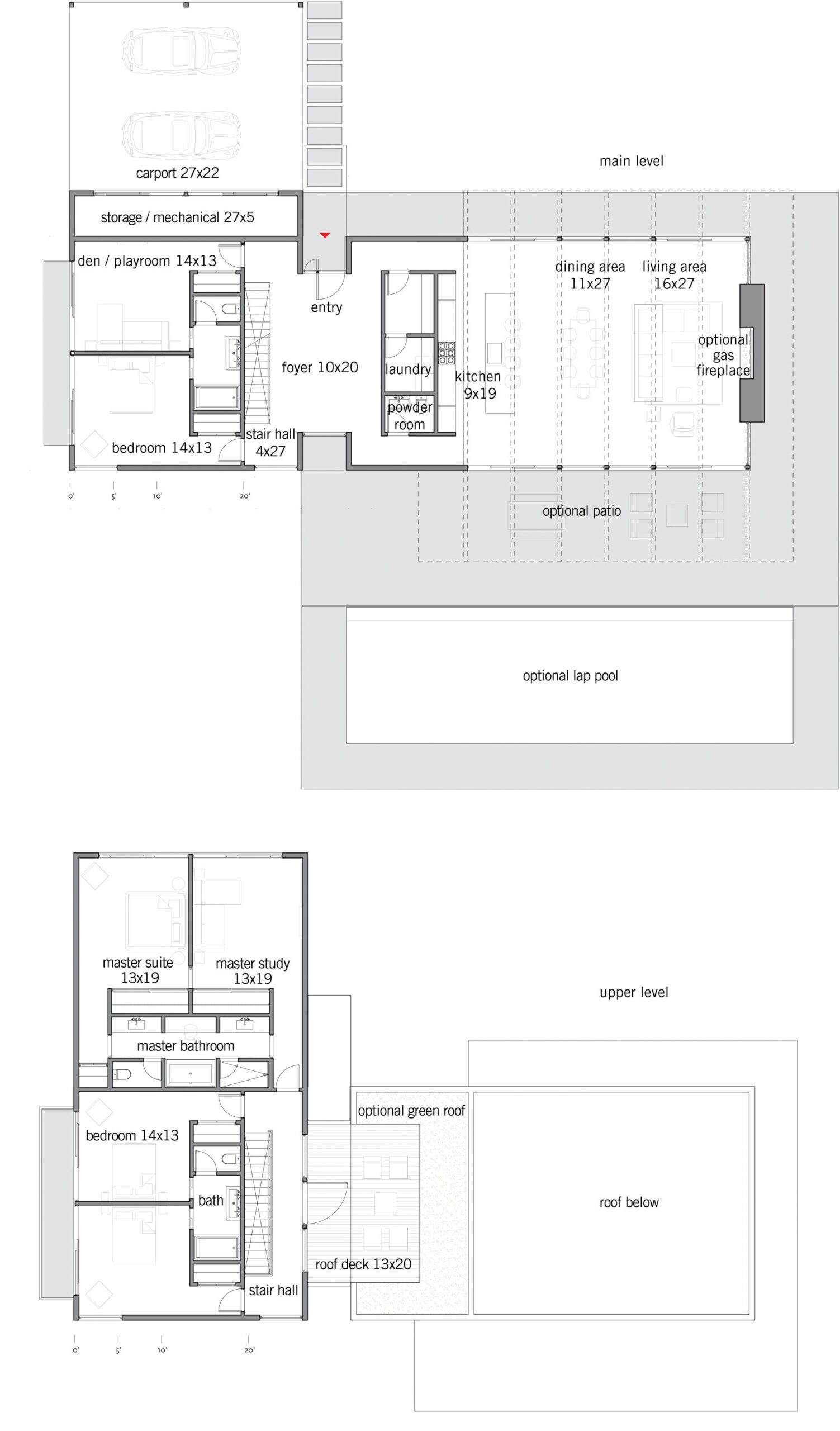
The disciplined symmetry and the interplay of solids and voids exude strength in the Dowling Studios 2230 home design. Private interior spaces are organized around a large central living area withย clear views of the front and rear landscapes. The Lindal post and beam structure enables deep overhangs for shade and protection from the elements. Theย dual master suiteย isย divided into distinct sleeping and lounging, or working spaces, which you can openย into one large master suite if you wish. Two additional bedrooms with ensuite baths on the opposite end are ideal for family of guest retreats.ย Large lift and slide doors open each space to the natural environment beyond and are positioned to maintain privacy for all.

#41622

Dowling-Studios-2230-architectural-house-plans-LAC

Floor Plans

EXPAND
Dowling 2230 home design for Lindal Homes
CLOSE
CLOSE

Talk to a Local Lindal Dealer

Fill out this form to connect with your local dealer to discuss pricing, site requirements, floor plan modifications, and more.

View Form

Ready to take the Next Step?

Reach out to your local Lindal Dealer for guidance through the entire design/build process.