Olon

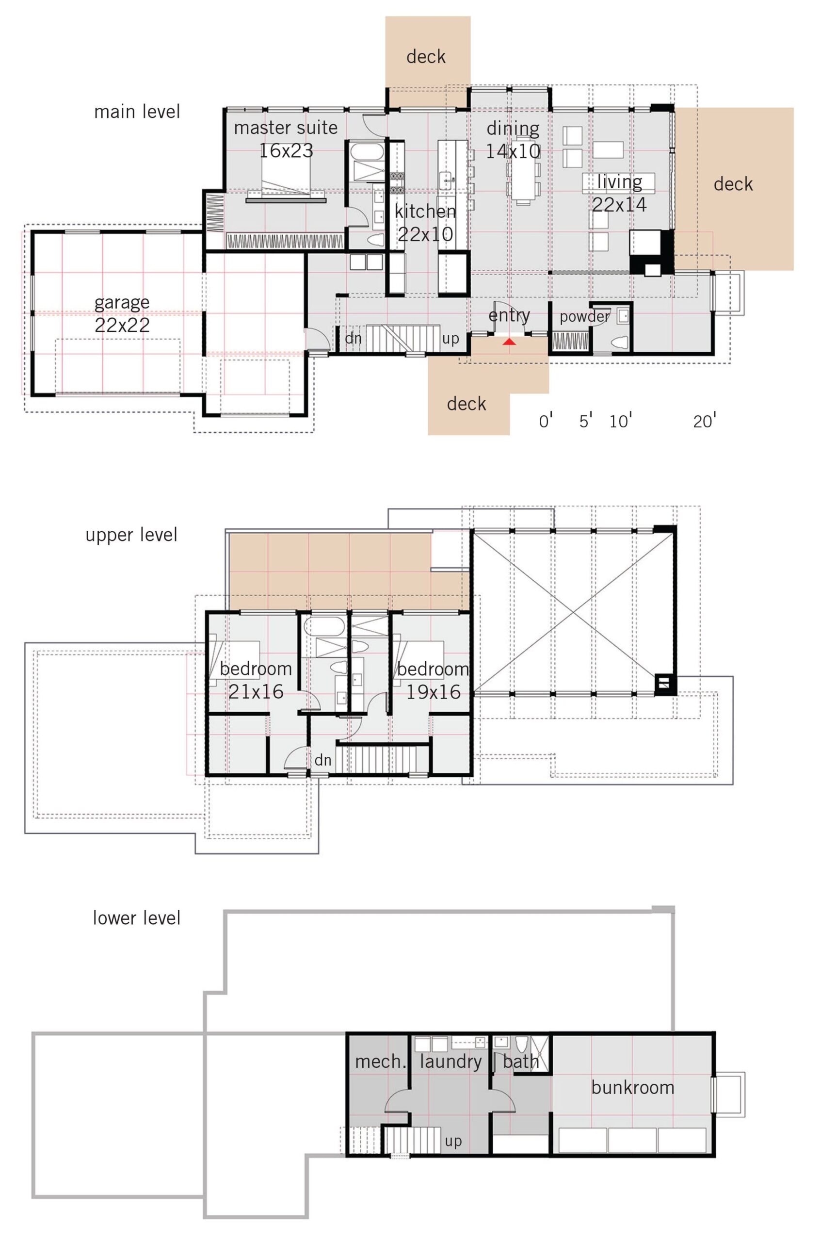
The Olon is a design worthy of a breathtaking waterside, mountainside, or far-off skyline view. The major living spaces and bedroom extend seamlessly to decks for entertaining or quiet stargazing. As with all OM Studio designs, the house reveals itself at each step and turn with distinctly different communal and quiet private spaces.

Lindal Modern Home OM Studio Design Olon 3233

Floor Plans

EXPAND
Floor Plans OM Studio Design Olon 3233
CLOSE
CLOSE

Talk to a Local Lindal Dealer

Fill out this form to connect with your local dealer to discuss pricing, site requirements, floor plan modifications, and more.

View Form

Ready to take the Next Step?

Reach out to your local Lindal Dealer for guidance through the entire design/build process.