Woodstock

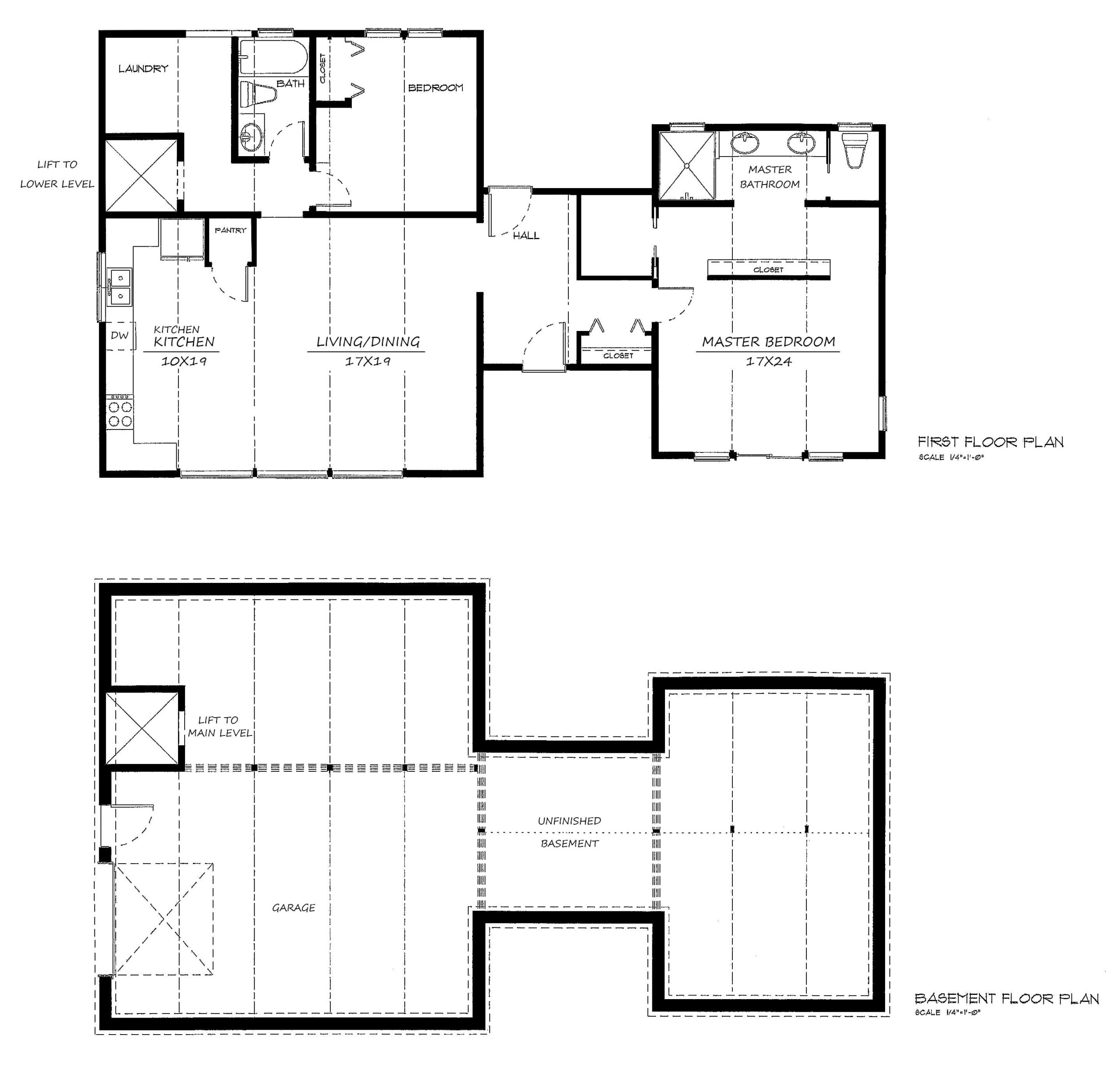
The Woodstock is a larger customized version of the popular Lindal Elements Cedar 1148 modern home with an additional 283 sq. ft. The main level consists of 1,431 sq. ft. and the unfinished basement includes a garage and another 1,431 sq. ft.ย  of unfinished area.

#41559

Floor Plans

EXPAND
modern home 41559 Woodstock
CLOSE
CLOSE

Talk to a Local Lindal Dealer

Fill out this form to connect with your local dealer to discuss pricing, site requirements, floor plan modifications, and more.

View Form

Ready to take the Next Step?

Reach out to your local Lindal Dealer for guidance through the entire design/build process.