Akris

Custom architectural home design defines the Akris, designed by Aris Georges of OM Studio. The home sits on six acres on an island of the coast of Washington State. Panoramic vistas of the water and surrounding woods are visible through floor-to-ceiling windows in the great room and throughout the house.

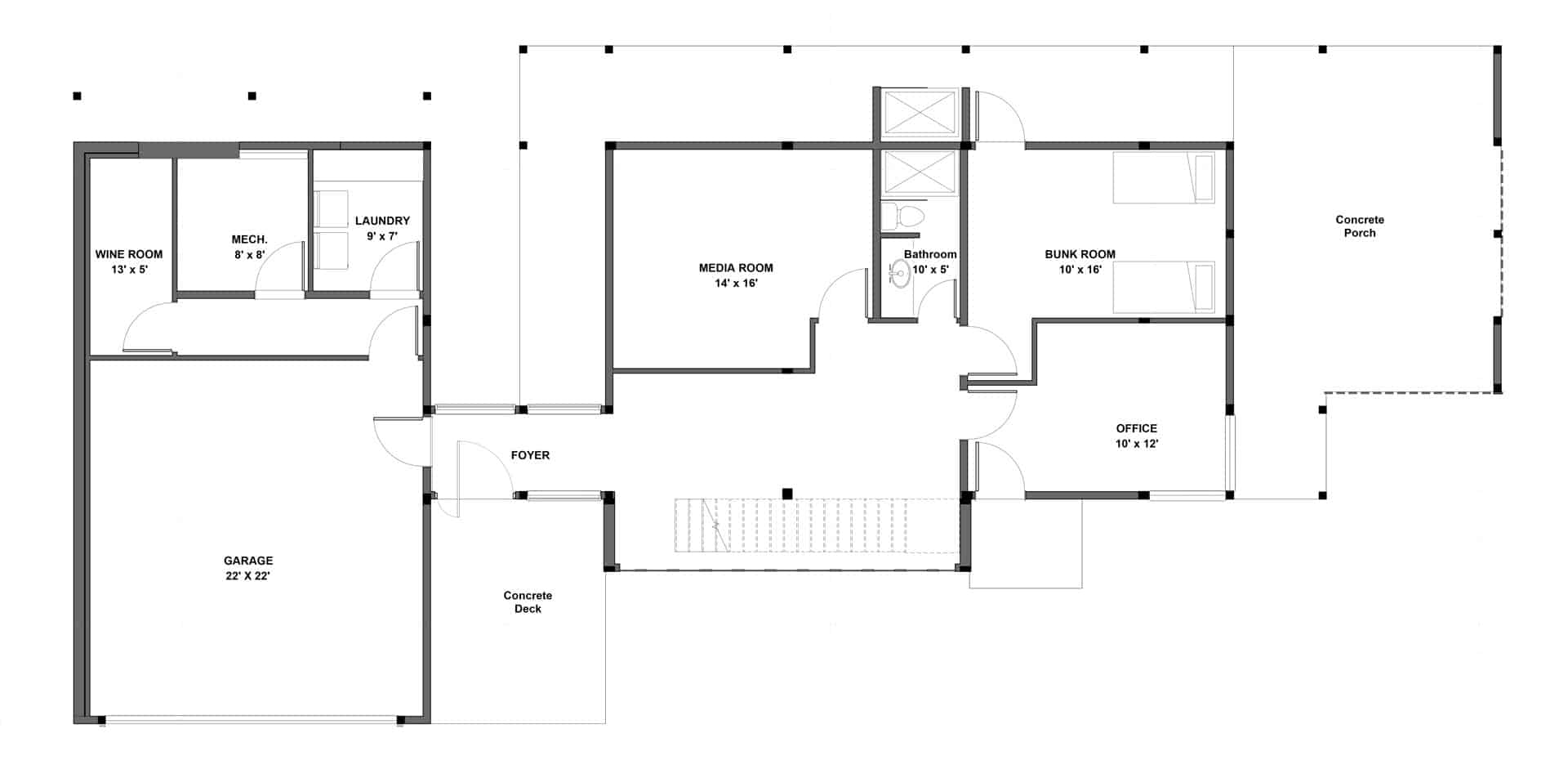
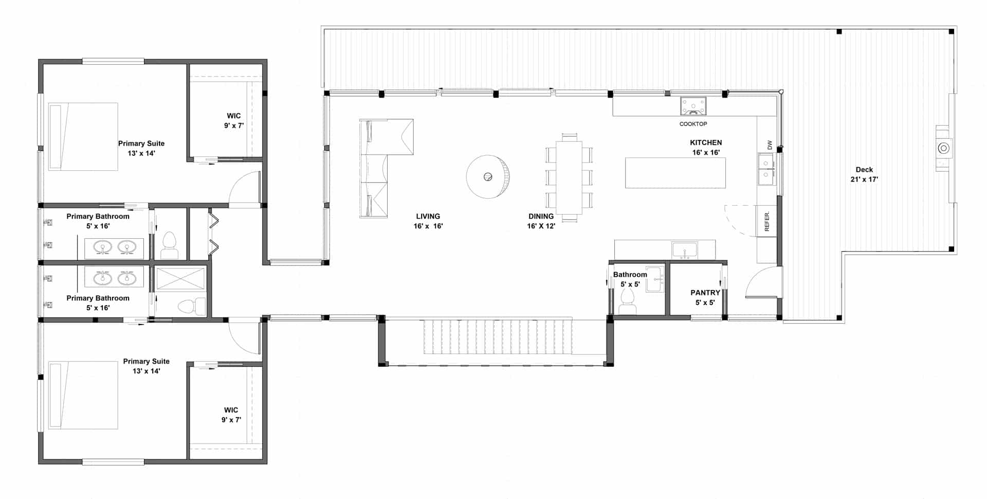
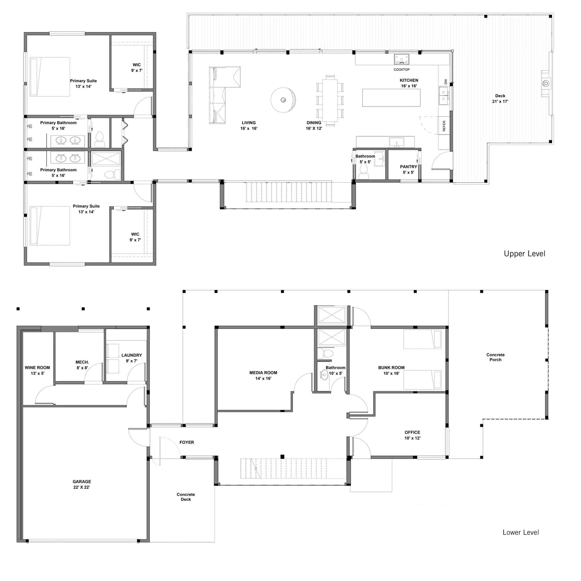
Akris is built on a slope, with entry on the lower level through a large pivot door. The lower level includes an office, bedroom, and media room. An open tread staircase leads up to the spectacular great room, with soaring cathedral ceilings, recessed lighting, and a wood burning stove. Two primary bedrooms, each with a three-quarter bath, are located on the upper level. The kitchen features cabinetry by Reform, stainless steel countertops, and a corner window that opens to the outside deck.

The landscape design reflects a serene and minimalist Japanese influence; a perfect complement to the home and its tranquil surroundings.

#42087

custom architect designed home

Floor Plans

EXPAND
OM Studio Akris modern custom home design floorplan with monopitch roof
CLOSE
CLOSE

Talk to a Local Lindal Dealer

Fill out this form to connect with your local dealer to discuss pricing, site requirements, floor plan modifications, and more.

View Form

""Akris (emphasis on the A) means 'on the edge,' in Greek. The home sits on the edge of the cliff and surrounding forest. I did many interior renderings for this project and they followed them exactly. It was a joy to work with these clients. "

โ€”-OM Studio architectural designer Aris Georges

Ready to take the Next Step?

Reach out to your local Lindal Dealer for guidance through the entire design/build process.